服務熱線:何詠斌 聯系方式:13267179661
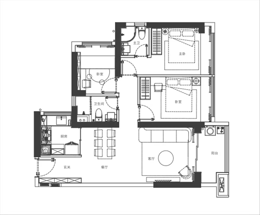
房屋戶型:3室 、
住宅類型:精裝修
區域:深圳市龍華新區大浪街道龍勝路及工業西路之間
最新開盤:2020.10.1
立即咨詢
24小時咨詢熱線:13267179661













服務熱線:何詠斌 聯系方式:13267179661

深圳市鹽田區鹽三路天麓三區商業街營銷中心
服務熱線:何詠斌 聯系方式:13267179661
深圳市寶安區政府西南
服務熱線:何永斌 聯系方式:13267179661
深圳市寶安區歡樂港灣
服務熱線:何永斌 聯系方式:13267179661
深圳市寶安中心區濱海片區新安街道興業路與香灣二路交叉口
服務熱線:何詠斌 聯系方式:13267179661
深圳市龍華新區大浪街道龍勝路及工業西路之間
服務熱線:何詠斌 聯系方式:13267179661
岐港公路
服務熱線:何詠斌 聯系方式:13267179661
廣東省東莞市麻涌鎮麻涌中心大道35號210室
服務熱線:何永斌 聯系方式:13267179661
深圳市華僑城新璽營銷中心53F
服務熱線:何永斌 聯系方式:13267179661